Plano Municipal - ARQUITECTOS EN LINEA

Vaya al Contenido

Plano Municipal

Normativa
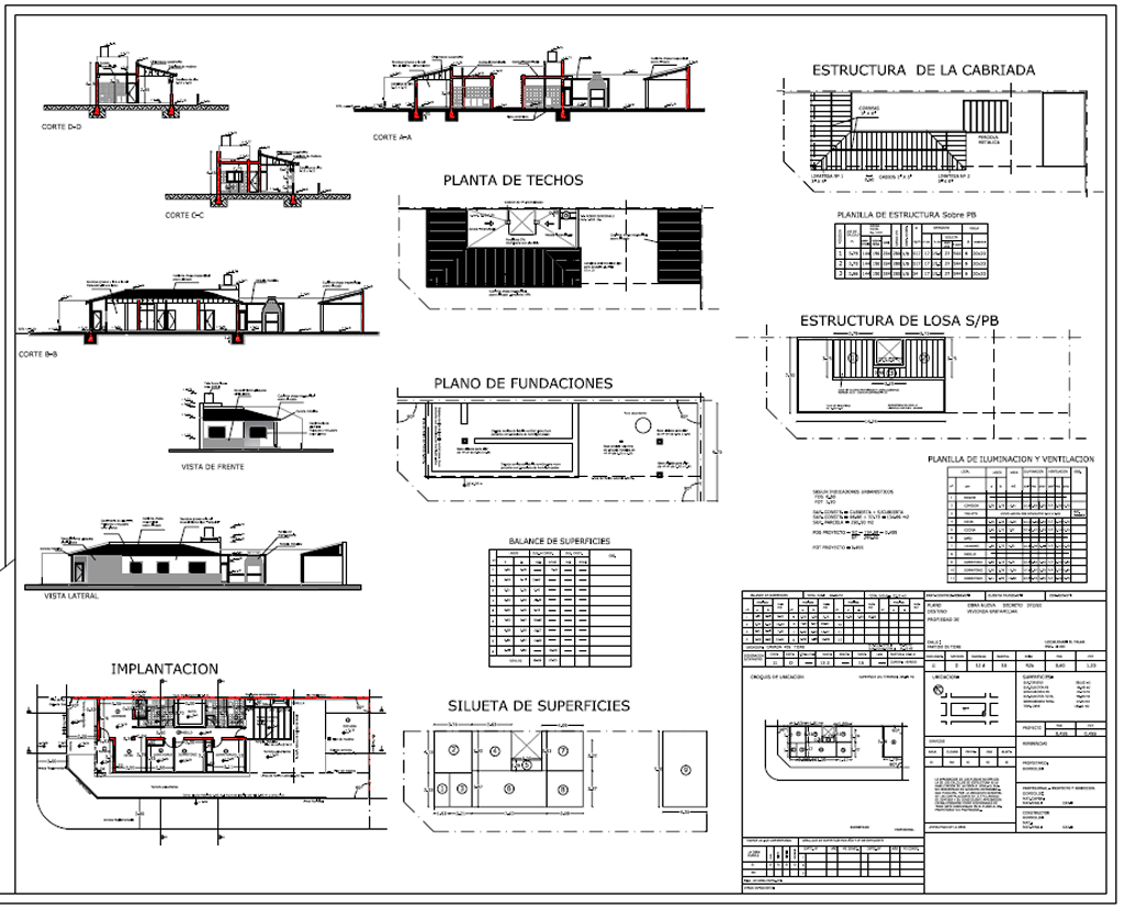
El Plano Municipal es un documento gráfico, que representa las  carcaterísticas y los detalles de una obra a construír, incorporando las  distintas planillas anexas, todo conforme a la norma establecida por el  Municipio, y que lleva la firma de un profesional matriculado en el distrito
Regreso al contenido